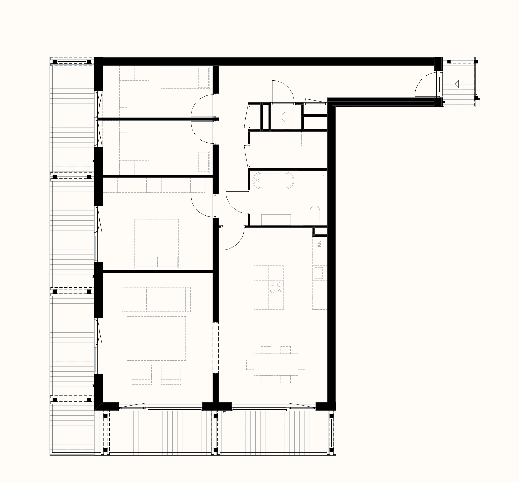
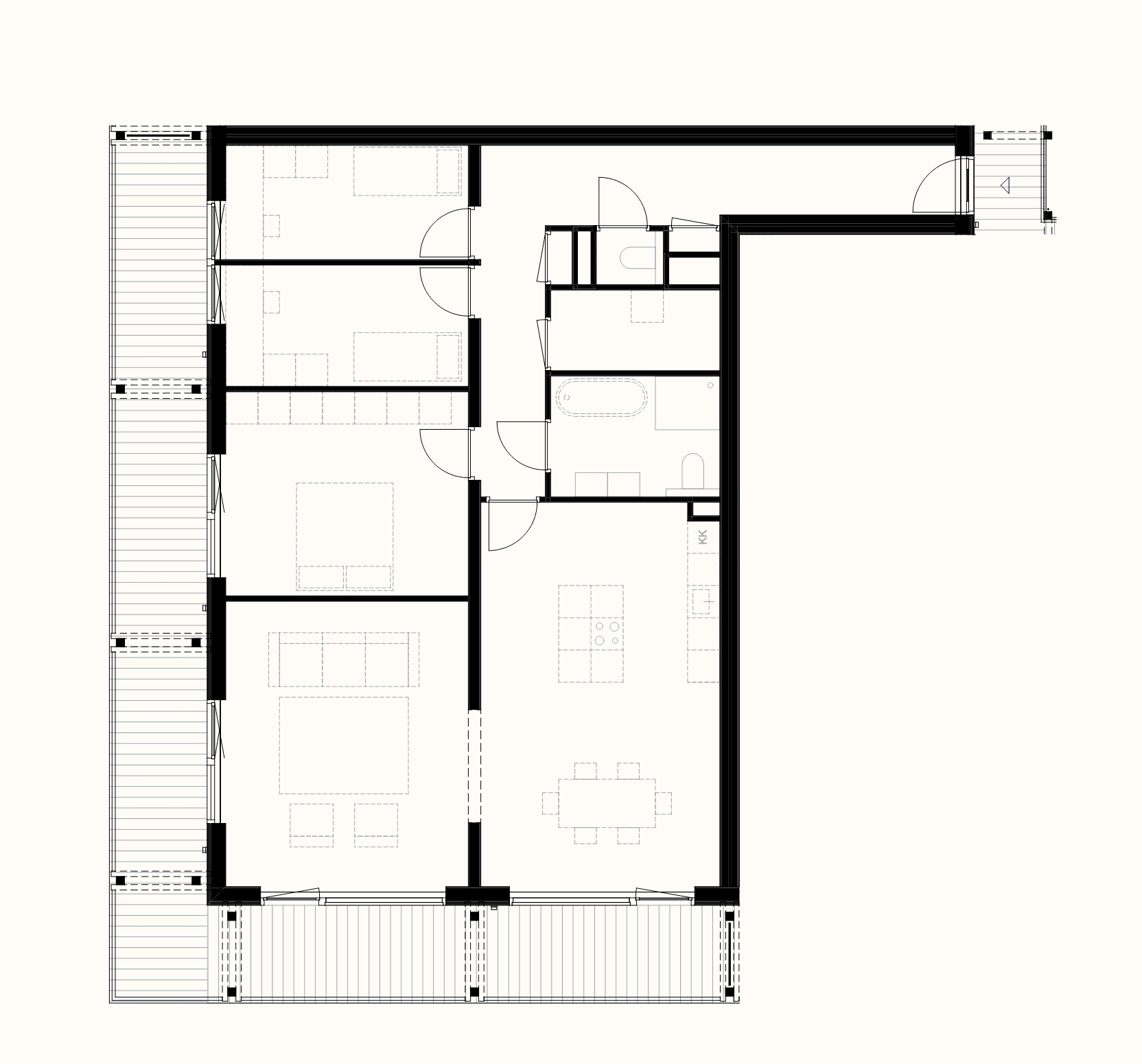
Sneak Peek: Fase 2 – De Generaal
Binnenkort start de verkoop van fase 2 bij De Kazerne: 42 moderne appartementen boven de historische bunker. Het aanbod is gevarieerd, met verschillende maten en indelingen, zodat er altijd een appartement is dat bij jouw woonwensen past.
Ontdek jouw ideale appartement
Compact & Slim (4 appartementen)
Woonoppervlakte: circa 70 m² | Vanafprijs circa € 398.000 | Buitenruimte tussen 6 – 12 m²
Ruim (15 appartementen)
Woonoppervlakte: vanaf 93 m² | Vanafprijs circa € 498.000 | Buitenruimte tussen 6 – 12 m²
Ruimer (6 appartementen)
Woonoppervlakte: vanaf 98 m² | Vanafprijs circa€ 510.000 | Buitenruimte tussen 6 – 16 m²
Royaal (5 appartementen)
Woonoppervlakte: vanaf 115 m² | Vanafprijs circa € 620.000 | Buitenruimte tussen 16 – 25 m²
Premium (12 appartementen)
Woonoppervlakte: vanaf 127 m² | Vanafprijs circa € 635.000 |Buitenruimte tussen 25 – 35 m²
* prijs is excl. berging en excl parkeerplaats
Alle appartementen hebben:
Een eigen berging
Een privé parkeerplek
Een fijn balkon of terras
Wil je als eerste een kijkje nemen bij de conceptplattegronden van De Generaal?
Meld je aan in de klantomgeving via de link hieronder en ontdek in de vragenlijst ‘Sneak peek plattegronden De Generaal’ de concept plattegronden. In februari worden deze verder uitgewerkt, zodat je dan een compleet beeld hebt van de appartementen.

Planning
LAUNCH VERKOOP WEBSITE
Mis het niet! Vanaf februari 2026 kun je als eerste alle informatie bekijken over De Kazerne en jouw toekomstige appartement ontdekken. Schrijf je alvast in om op de hoogte te blijven van het actuele aanbod en bijzondere woonkansen.
START VERKOOP
De verkoop gaat van start! Dit is jouw kans om als eerste jouw favoriete appartement te reserveren en verzekerd te zijn van een plek in deze unieke woonontwikkeling.
START BOUW
De bouw gaat van start! Vanaf najaar 2026 wordt De Kazerne stap voor stap werkelijkheid. Volg de voortgang en zie hoe jouw toekomstige thuis vorm krijgt.
OPLEVERING
Het moment waar je op hebt gewacht! In najaar 2028 zijn de appartementen klaar om in te trekken en begint jouw nieuwe leven in De Kazerne.
Financieel vooruitkijken: hoe werkt dat met de overwaarde van je huidige woning?
Financieel vooruitkijken: hoe werkt dat met de overwaarde van je huidige woning?
Veel toekomstige bewoners van De Kazerne hebben een fijn voordeel: hun huidige woning is meer waard dan toen ze ’m kochten. Die overwaarde lijkt in eerste instantie genoeg om de nieuwe woning volledig mee te betalen. In de praktijk werkt dit net even anders.
Overwaarde gebruiken? Dan heb je vaak tijdelijk extra financiering nodig
Je krijgt je overwaarde pas uitbetaald op het moment dat je huidige woning echt is verkocht. Maar je wilt natuurlijk eerder kunnen doorpakken op jouw woning in De Kazerne. Daarom kiezen veel doorstromers voor een overbruggingshypotheek: een tijdelijke lening waarmee je de verwachte overwaarde kunt inzetten vóórdat de verkoop is afgerond.
Het is goed om hier vooraf al even bij stil te staan — zo kom je later niet voor verrassingen te staan.
Goed om te weten voor doorstromers
Goed om te weten voor doorstromers
Naast een overbruggingshypotheek is er ook een verhuisregeling. Daarmee kun je in veel gevallen je huidige (lagere) hypotheekrente meenemen naar je nieuwe woning. Dat maakt verhuizen vaak financieel prettiger dan gedacht. Wil je weten hoe dit voor jou uitpakt? Ons hypotheekcontactpersoon van ING denkt graag met je mee.
Persoonlijk advies voor kopers van De Kazerne
Persoonlijk advies voor kopers van De Kazerne
De persoonlijke adviseurs van ING en Rabobank staan voor je klaar om vrijblijvend mee te kijken naar jouw mogelijkheden. Zo weet je precies waar je aan toe bent voordat je een volgende stap zet.
Om je financiële plaatje helemaal goed op orde te krijgen, is het ook belangrijk de huidige waarde van je woning te kennen. Onze makelaars komen graag bij je langs voor een waardebepaling. Wil je een afspraak maken? Bekijk dan de contactgegevens onderaan deze pagina.